VILLA SINGOLA IN VALPOLICELLA

EDIFICATA NELLA META DEGLI ANNI '80 CON TERRENO PRIVATO
€ 650.000
Pedemonte, San Pietro in Cariano
Affiliato Tecnocasa
Ufficio di Negrar Di Valpolicella, Frazione Santa Maria
Tecnocasa
Descrizione

SINGOLA VILLETTA SU LOTTO PRIVATO DI CIRCA 1.000 MQ

SAN PIETRO IN CARIANO

FRAZIONE PEDEMONTE

In vendita, proponiamo questa soluzione di abitazione indipendente edificata nella metà degli anni '80 su lotto di 936 mq catastali.
La casa è ubicata nella zona centrale della frazione, a breve distanza da tutti i principali servizi, come ad esempio scuole, farmacia, negozi, mezzi pubblici e altro ed allo stesso tempo lontano da fonti di rumore o situazioni che potrebbero creare disturbo nella quotidianità, regalando tranquillità e privacy.

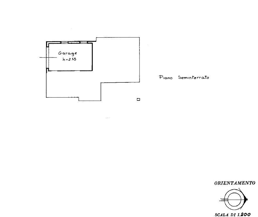
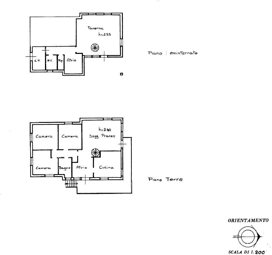
L'immobile si sviluppa sui piani rialzato e seminterrato, componendosi di ingresso, soggiorno, cucina abitabile, tre camere da letto, bagno e terrazzo al piano rialzato, la scala interna ci accompagna al piano seminterrato dove si trovano la taverna con camino, l'autorimessa e numerosi locali accessori.
Nel suo insieme l'abitazione è composta da:

* SOGGIORNO DI OTTIME DIMENSIONI
* CUCINA ABITABILE
* TRE CAMERE DA LETTO
* DUE BAGNI
* TAVERNA
* CANTINA
* LOCALI PLURIUSO
* AUTORIMESSA

Il terreno offre la possibilità di ampliare l'attuale volume già edificato e anche per l'attuale posizionamento dell'abitazione sul lotto, di realizzare una piscina di comodissime dimensioni con zona solarium e zona relax.
La soluzione proposta si presta ad essere ideale per famiglie, comoda a tutte le principali arterie stradali che collegano il centro città di Verona e il Lago di Garda.

Se state prendendo in considerazione di vendere il vostro immobile per l'acquisto di questa proprietà, siamo lieti di accompagnarvi passo dopo passo nella massima tranquillità nel percorso di vendita e di acquisto.
APE in definizione, quella esposta è puramente indicativa.

Efficienza energetica
Anno di costruzione
1986
Riscaldamento
Autonomo
Tipo impianto
A radiatori
Tipo alimentazione
Metano
In fase di definizione
Classe energetica
Caratteristiche
Locali
7
Superficie
222 mq
Anno di costruzione
1986
Bagni
2
Camere da letto
3
Box
1
Posti auto
2
Balconi
1
Terrazzi
1
Classe immobile
Signorile
Tipo di proprietà
Intera proprietà
Piano
Su più livelli
Arredamento
Assente
Giardino
Privato
Riscaldamento
Autonomo
Tipo impianto
A radiatori
Tipo alimentazione
Metano
Ulteriori informazioni
Per tutte le informazioni di cui hai bisogno fissa un appuntamento e passa dal nostro ufficio.
Devi vendere per acquistare?
Valutiamo gratuitamente il tuo immobile per accompagnarti in questo importante passaggio.
Richiedi una valutazione
Richiedi informazioni
Compila il form, ti contatteremo al più presto