ARBIZZANO DI NEGRAR DI VALPOLICELLA

VILLA D'ANGOLO APERTA SU TRE LATI CON GIARDINO PRIVATO
€ 498.000
Santa Maria, Negrar di Valpolicella
Affiliato Tecnocasa
Ufficio di Negrar Di Valpolicella, Frazione Santa Maria
Tecnocasa
Descrizione

ARBIZZANO

ZONA TRANQUILLA E SERVITA, IDEALE PER FAMIGLIE !

VILLA ANGOLARE CON INGRESSO INDIPENDENTE - LIBERA DA SUBITO

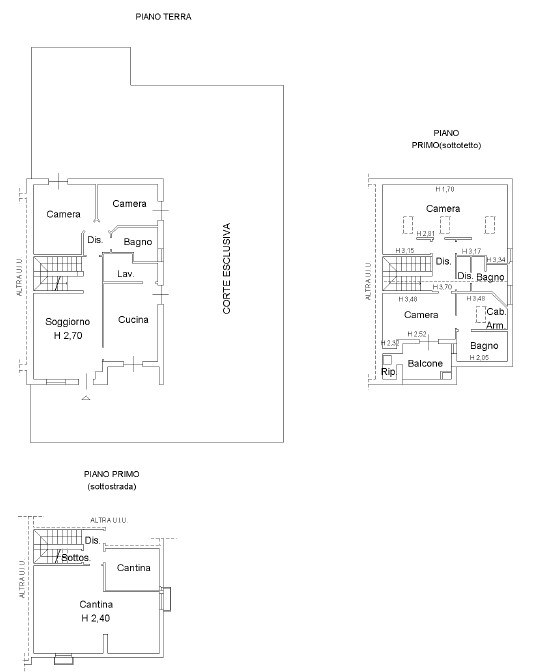
L'abitazione, aperta su tre lati ed esposta ad est-sud-ovest, offre vani di generose dimensioni in quanto si sviluppa su due piani fuori terra di circa 100 mq l'uno con locali accessori al piano interrato dove è presente anche il doppio garage in larghezza dotato di doppia basculante.

La casa, nel suo insieme, è composta da ingresso, soggiorno, cucina abitabile, due camere da letto matrimoniali, bagno e ripostiglio al piano terra; camera padronale con cabina armadio, bagno privato e terrazzo, due o tre camere da letto e bagno al piano primo ed ultimo, locali accessori quali cantina e ripostiglio oltre che alla taverna predisposta per essere arredata di cucina e camino al piano interrato.

Alcune caratteristiche: climatizzata, allarmata, predisposizione impianto di irrigazione e caldaia di recentissima installazione. Ottime finiture come il parquet presente nella zona notte del piano primo e il marmo presente al piano terra.

APE IN DEFINIZIONE, QUELLA ESPOSTA E' PURAMENTE INDICATIVA.

DEVI VENDERE PER ACQUISTARE? VALUTIAMO GRATUITAMENTE IL TUO IMMOBILE ACCOMPAGNANDOTI PASSO DOPO PASSO IN QUESTO IMPORTANTE PASSAGGIO.

Efficienza energetica
Anno di costruzione
1994
Riscaldamento
Autonomo
Tipo impianto
A radiatori
Tipo alimentazione
Metano
In fase di definizione
Classe energetica
Caratteristiche
Locali
9
Superficie
270 mq
Anno di costruzione
1994
Bagni
3
Camere da letto
5
Box
1
Posti auto
2
Terrazzi
1
Classe immobile
Signorile
Tipo di proprietà
Intera proprietà
Piano
Su più livelli
Riscaldamento
Autonomo
Raffrescamento
presente
Tipo impianto
A radiatori
Tipo alimentazione
Metano
Ulteriori informazioni
Per tutte le informazioni di cui hai bisogno fissa un appuntamento e passa dal nostro ufficio.
Devi vendere per acquistare?
Valutiamo gratuitamente il tuo immobile per accompagnarti in questo importante passaggio.
Richiedi una valutazione
Richiedi informazioni
Compila il form, ti contatteremo al più presto