Nuovi appartamenti in Valpolicella

Riqualificazione edilizia di un edificio storico con progetto mediante demolizione e ricostruzione.
Prezzo su richiesta
Gargagnago, Sant'Ambrogio di Valpolicella
Affiliato Tecnocasa
Ufficio di Sant’Ambrogio di Valpolicella
Tecnocasa
Descrizione

Vendita da privato ad imposta di registro
Consegna estate 2024
Scelta interna delle finiture
Impresa Sole

CAPITOLATO COSTRUTTIVO:

  • Rivestimento esterno piano terra e bordature finestre in Pietre della Lessinia
  • Cappotto termico esterno
  • Tetto ventilato in lamiera di alluminio e travi a vista interni color naturale
  • Antisismica
  • Impianto recupero acque meteoriche (3 cisterne)
  • Velux elettrico
  • Tapparelle elettriche
  • Predisposizione split in ogni stanza
  • Predisposizione Zanzariere
  • Riscaldamento e condizionamento con caldaia a pompa di calore
  • Pannelli fotovoltaici da 3,5 kw ad unità
  • Classe energetica minima A3 (si precisa che il progetto ed i materiali scelti sono per costruzione in classe A4


Riqualificazione edilizia di un edificio storico con progetto mediante demolizione e ricostruzione. Il Nuovo fabbricato offrirà 3 alloggi, di cui un piano terra con ingresso indipendente e giardino privato e due piani primi di tipologia duplex con terrazzo abitabile. Ogni unità sarà dotata di sfoghi privati, giardino o terrazzi, cantina e 2 due posti auto privati all'interno della proprietà. Zona di pregio, servita e molto richiesta. Consegna prevista estate 2024. ACQUISTO ESENTE IVA. Ulteriori INFORMAZIONI e PRENOTAZIONI in agenzia previo appuntamento. DEVI VENDERE PER ACQUISTARE? VALUTIAMO GRATUITAMENTE IL TUO IMMOBILE PER ACCOMPAGNATI PASSO DOPO PASSA IN QUESTO IMPORTANTE PASSAGGIO. Contattaci 0456861146

PIANO TERRA APPARTAMENTO A € 340.000,00

Appartamento posto al piano terra con ingresso indipendente e giardino privato. Soggiorno con zona cottura pranzo, due camere da letto, due bagni. Cantina e due posti auto privati all'interno della proprietà.

2 POSTI AUTO E DUE CANTINE INGRESSO INDIPENDENTE – GIARDINO PRIVATO

Appartamento 90,32 mq.
Lastrico e giardino 85,60 mq.
Posto auto 1 16.64 mq.
Posto auto 2 13.00 mq.
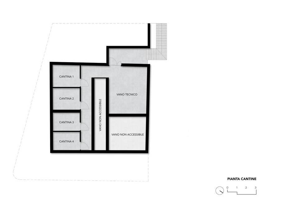
Cantina 3 e 4 13,76 mq.

TOTALE MQ. COMMERCIALI 124,86 mq. + parti comuni 23,32 MQ. = 147,32 mq.

PIANO PRIMO APPARTAMENTO B € 320.000,00

Appartamento posto al piano primo e secondo dotato di terrazzo abitabile con veduta panoramica. Ingresso, soggiorno con zona cottura pranzo e bagno al piano primo, due camere da letto e bagno al piano secondo ultimo. Cantina e due posti auto di proprietà.

n.2 POSTI AUTO e n.1 CANTINA

Appartamento 93,48 mq.
Terrazzo 11,20 mq.
Posto auto n.5 13,00 mq.
Posto auto n.6 13,00 mq.
Cantina 8,32 mq.

TOTALE MQ. 114,56 mq. + parti comuni 23,32 mq. = 138,18 mq

PIANO PRIMO APPARTAMENTO C € 310.000,00

Appartamento posto al piano primo e secondo dotato di terrazzo abitabile con veduta panoramica. Ingresso, soggiorno con zona cottura pranzo e bagno al piano primo, due camere da letto e bagno al piano secondo ultimo. Cantina e due posti auto di proprietà.

n.2 POSTI AUTO e n.1 CANTINA

Appartamento 90,30 mq.
Terrazzo 12,50 mq.
Posto auto n.3 13,00 mq.
Posto auto n.4 13,00 mq.
Cantina 8 mq.

TOTALE MQ. COMMERCIALI 111,67 mq. + parti comuni 23,32 mq. = 134,99 mq.

10.000 € PER INTERESSE CAPARRA
50.000,00 ENTRO 31/12
50.000,00 ENTRO 30/04
SALDO A ROGITO

POSSIBILE VALUTAZIONE DEL SALDO PREZZO SUCCESSIVO A ROGITO.

Ulteriori informazioni
Per tutte le informazioni di cui hai bisogno fissa un appuntamento e passa dal nostro ufficio.
Devi vendere per acquistare?
Valutiamo gratuitamente il tuo immobile per accompagnarti in questo importante passaggio.
Richiedi una valutazione
Richiedi informazioni
Compila il form, ti contatteremo al più presto